Studio zu verkaufen in Sonvico - ideal als bnb

218'900 CHF
30 m2
Objekt-Nr.
B25004V
Gemeinde
Sonvico
Kategorie
Wohnung
Räume
1
Energieklasse
Nicht anwendbar
Zustand der Immobilie
im Bau befindlich
Gesamteindruck
mittelmäßig
Lage
Hanglage
Aussicht
Bergblick
Ausrichtung
Osten
Freie Seiten
1
Garten
nein
Ausstattung
Übernahme möglich
Heizung
autonom
Heizungsart
Wärmepumpe
Warmwasser
autonom
Kühlung
Teilt
Tür- / Fensterrahmen
doppelt verglast
Türen / Fenster
neu
Boden Wohnraum
Fliesen
Fussbodenbelag Schlafzimmer
Gres-Fliese
Fussbodenbelag Küche
Gres-Fliese
Fussbodenbelag Nasszelle
Gres-Fliese
Zubehör
Klimaanlage, Doppelverglasung
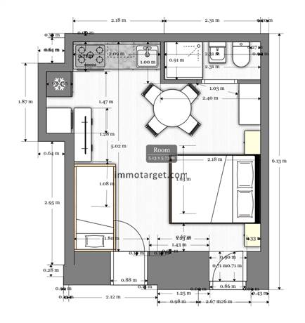
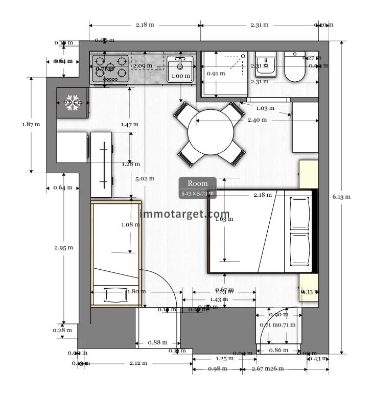
In einer ruhigen und panoramischen Lage in der Gemeinde Sonvico, bieten wir zum Verkauf eine Ein-Zimmer-Wohnung, die derzeit renoviert wird, ideal als kurzfristige Investition. Der Raum, obwohl unvollendet, ist bereits im Preis für seine Fertigstellung enthalten, und wird mit den folgenden Arbeiten geliefert werden:

Vollständig eingerichtete Küche: modern und funktionell, mit einem für ein Studio optimierten Platzangebot.
Komplettes Bad: ausgestattet mit hochwertigen Sanitärobjekten, Dusche, Waschbecken und allen notwendigen Installationen.
Wärmepumpenheizung und -kühlung: ein energieeffizientes System, das das ganze Jahr über Komfort garantiert.
Die Wohnung eignet sich dank ihrer strategischen Lage perfekt für die Erzielung von Einkünften, da sie leicht für Kurzzeitvermietungen (Airbnb, Touristenvermietung) genutzt werden kann. Die Innenausstattung wird modern und hochwertig sein, um maximalen Komfort und Ästhetik zu bieten.

Hauptmerkmale:

Optimale Fläche für ein funktionelles Studio-Apartment.
Wärmepumpen-Heiz- und Kühlsystem für gute Energieeinsparungen.
Schlüsselfertige Übergabe, um lange Wartezeiten zu vermeiden.
Bequeme und ruhige Lage in der Nähe von Dienstleistungen und Hauptzufahrtswegen.

Perfekt für diejenigen, die eine sichere und einfache Investition in einem hochwertigen Wohnumfeld suchen. Verpassen Sie nicht die Gelegenheit, dieses Studio-Apartment mit hohem Renditepotenzial zu erwerben!

Sofortanfrage zum Objekt

Senden

teilen

Cookie preference